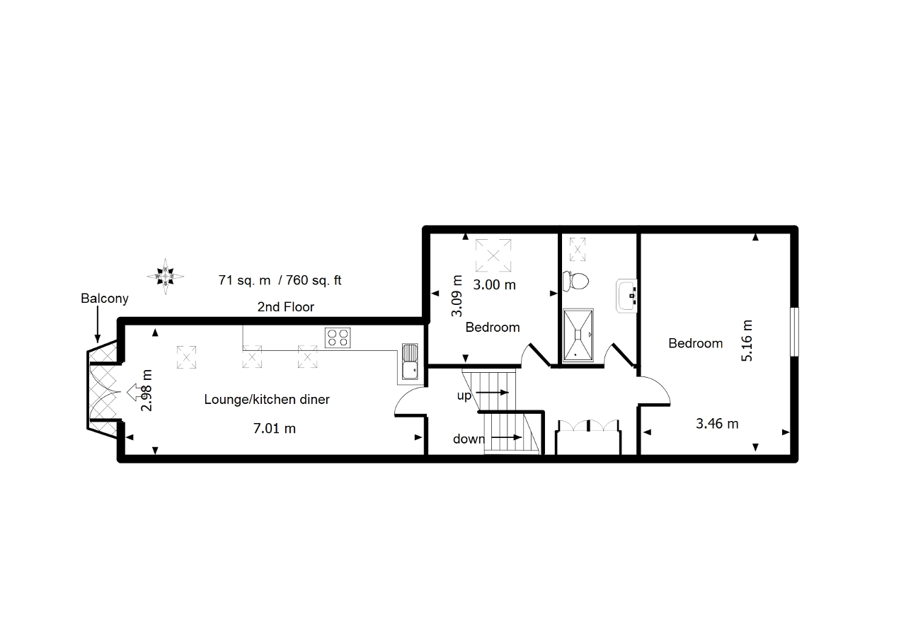
A newly refurbished apartment in a large period house. The accommodation features a modern open-plan reception/kitchen/diner, with high ceilings, two double bedrooms, bathroom, balcony and communal gardens, Call 020 7732 3999 for viewing.
Situated on the quiet residential Copleston Road with free parking outside the property.
Great transport links available at East Dulwich Station (London Bridge in 10 mins) within a short walk. Also available is Peckham Rye Station for Victoria, Thameslink and London Overground services. Numerous bus routes including 185 (Victoria), 176 (Tottenham Court Road), 40 (Aldgate), P13 (New Cross Gate) and 484 (Camberwell Green).
There is a selection of local amenities available on Bellenden Road. The vibrant Lordship Lane is also nearby offering a greater selection of shops and eateries. There is a Sainsbury's store on Dog Kennel Hill for larger grocery shopping.
For further information on this property please call 020 7732 3999 or e-mail admin@kushymove.com



