A well presented ground floor studio apartment with its own private entrance, ideally located on the ever popular Bellenden Road in Peckham.
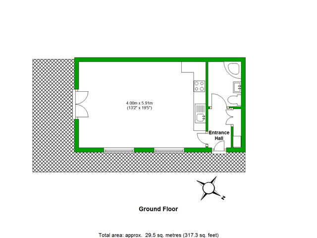
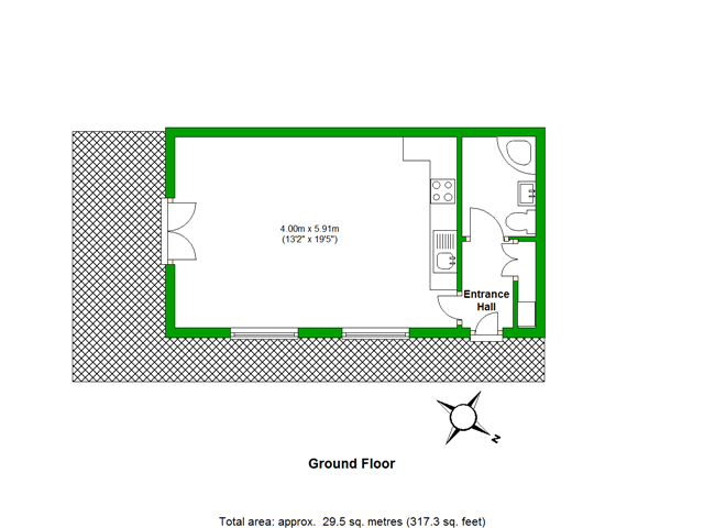
The property offers a bright and well proportioned open plan living space with attractive hardwood flooring, providing a versatile layout for both living and sleeping areas. The modern kitchen is fitted with integrated appliances including a dishwasher, while the fully tiled bathroom is finished to a good standard.
Further benefits include a private garden, offering valuable outdoor space rarely found with studio properties, and the convenience of ground floor access.
The property is ideally suited to first time buyers, investors, or those looking for a well located London base.
Bellenden Road is a vibrant and highly sought after area known for its independent cafés, restaurants, and local shops. The property is just a short walk from Peckham Rye Station, providing excellent transport links via National Rail, London Overground and Thameslink with direct connections into Central London and across the wider network.
For further information on this property please call 020 7732 3999 or e-mail admin@kushymove.com



