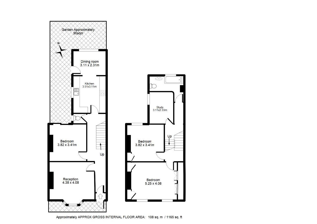
A spacious three-bedroom end terrace period house comprises of reception room, dining room, kitchen, bathroom with separate WC and garden.
The property is located on a popular road close with easy access to all local amenities on Bellenden Road. The many shops and eateries on Lordship Lane are nearby.
Peckham Rye and East Dulwich Stations (National Rail Zone 2) are within walking distance with direct connection into central London.
For further information on this property please call 020 7732 3999 or e-mail admin@kushymove.com



