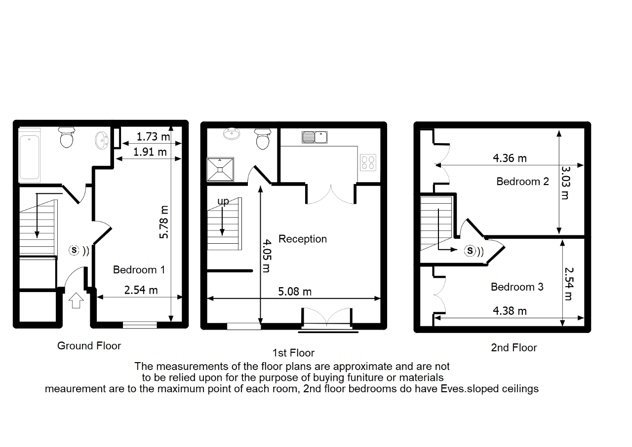
A terrace town house arranged over three floors offers a good size reception with wood floors and Juliette balcony, semi open-plan kitchen, two bathrooms and three double bedrooms. Offered unfurnished..
Located in the heart of Peckham Rye and within a short walk of Peckham Rye Station (National Rail, Thameslink and London Overground), local shops and amenities.
For further information on this property please call 020 7732 3999 or e-mail admin@kushymove.com



